7:30 - 16:00 (мск)
Сб-Вс: Выходные
г. Самара, Московское шоссе 18км Территория Завода Приборных Подшипников
Контактная информация
7:30 - 16:00 (мск)
Сб-Вс: Выходные
г. Самара, Московское шоссе 18км Территория Завода Приборных Подшипников
Описание
Характеристики
Детский игровой комплекс Остров детства (Эко) ДИК 2.01.8.01-02 Н=1200
| № | Наименование | Описание | Кол-во | Единица измерения |
1 | Башня | Башни выполнены из четырёх клеёных брусьев 100х100 мм высотой 2500 мм полы из ламинированной фанеры с антискользящим покрытием 1000х1000 мм, толщиной 18 мм. Над четырьмя башнями имеется двух скатная крыша из фанеры толщиной 12 мм, размер 1000х575 мм. Над четырьмя другими башнями - арки, разборная конструкция из двух полуарок, габарит 500х342х18 мм и накладки 220х200х18 мм, кромки фанеры тщательно шлифованы, фанера окрашена с нанесением принта в стиле Эко. Размер башен 1000х1000х3000 (h)- с крышей и 1000х1000х2800 (h)-с аркой Отметка пола от планировочной отм. площадки 1200 мм (высота свободного падения 1200 мм ) | шт. | |
2 | Горка | Скат горки шириной 530 мм, выполнен из нержавеющей стали t=1,5 мм, - цельного листа, борта выполнены из влагостойкой фанеры толщиной 24 мм, кромки фанеры тщательно шлифованы, борта окрашены при помощи УФ печати, принт - в стиле «Эко. Ограждения стартового участка горки, выполнены из влагостойкой фанеры толщиной 18 мм. Опорный каркас горки выполнен из профиля 40х25 и труб диаметром 32 мм (металл имеет плавные радиусы и тщательную обработку швов, покрыт порошковой краской) Размер горки в плане 530х2270х1200 (h) | 1 | шт |
3 | Лестница | Лестница состоит из бортов, выполненных из фанеры влагостойкой толщиной 24 мм, и пяти ступенек, выполненных из ламинированной антискользящей фанеры, толщиной 18 мм, ширина ступней 780 мм. Пространство между ступенями закрыто экранами из влагостойкой фанеры толщиной 18 мм, между ступенью и экраном имеется щель для слива дождевой воды. Ступени и экраны вставляются в пазы бортов лестницы. Борта стягиваются шпильками М10. Лестница поставляется в собранном виде | шт | |
4 | Перила лестницы | выполнены влагостойкой фанеры толщиной 24 мм. В комплекте 2 шт. перил | комплект | |
5 | Дугообразный мост | Мост состоит из металлического сварного каркаса из трубы диаметром 32 мм и полосы 20х4 (металл имеет плавные радиусы и тщательную обработку швов, покрыт порошковой краской в графитово серый цвет) и брусков из ламинированной анти-скользящей фанеры, размер 1000х100х24 мм. Общая длина моста 1500 мм, ширина 1000 мм | комплект | |
6 | Ограждение дугообразного моста | выполнено из влагостойкой фанеры толщиной 18 мм, окрашено, с нанесением принта-Эко. Габариты 1500х820х18 мм | комплект | |
7 | Прямой мост | Мост состоит из металлического сварного каркаса из профиля 40х40 и 40х25 мм и полосы 40х4, (металл имеет плавные радиусы и тщательную обработку швов, покрыт порошковой краской) и половиц из ламинированной анти-скользящей фанеры, размер 1000х100х24 мм. Общая длина моста 1500 мм, ширина 1000 мм | шт | |
8 | Ограждения прямого моста | Сварная конструкция из стальных труб диаметром 27 мм и профиля 15х15 мм, размер 600х1500 (металл имеет плавные радиусы и тщательную обработку швов, покрыт порошковой краской. Комплект- 2шт | комплект | |
9 | Подвесной мост | Состоит из половиц, выполненных из ламинированной анти-скользящей фанеры, размер 1000х180х18 мм, в количестве 5 шт. Половицы скреплены между собой цепью и подвешены на деталях подвеса, изготовленных из профиля 20х20 мм и пластины 100х40х3, к перилам из металла. Перила и деталь подвеса покрыты порошковой краской в графитово-серый цвет. Общая длина моста 1500 мм, ширина 1000 мм. Под половицами имеется страховочный мост из ламинированной анти-скользящей фанеры крепящейся к стальному каркасу из профия 40х40 и 40х25 мм | шт | |
10 | Канат | Канат крепится к стальной перемычке. Перемычка из трубы диаметром 32 мм. Канат полиуритановый, диаметром не менее 26 мм | шт | |
11 | Вертикальный шест со спиралью | выполнен из металлической трубы диаметр 32 мм, имеет плавные радиусы и тщательную обработку швов, металл покрыт порошковой краской. Высота 2400 мм, | шт | |
12 | Лаз-лестница | Сварная конструкция из труб диаметром 32 и 27 мм. Перила из трубы диаметром 32 мм (2 шт) и перекладины из гнутой трубы диаметром 27 мм (5 шт), имеет плавные радиусы и тщательную обработку швов, металл покрыт порошковой краской в графитово-серый цвет | шт | |
13 | Рукоход | Рукоход выполнен из двух клеёных брусьев не более 100х100 мм длиной 2000 мм. Между брусьями крепятся перекладины из стальной трубы диаметром 27 мм с толщиной стенки не менее 2,8 мм, к трубе с двух сторон приварены в заводских условиях планки из листовой стали. толщиной не менее 3 мм, шириной 40 мм и длиной 100 мм | комплект | |
14 | Лаз | Лаз состоит из бортов, выполненных из фанеры влагостойкой толщиной 24 мм и семнадцати половиц, выполненных из ламинированной антискользящей фанеры, толщиной 24 мм, ширина половиц 100 мм. Половицы вставляются в пазы бортов лаза. Борта стягиваются шпильками М10. Борта окрашены с нанесением принта Город. Лаз поставляется в собранном виде | комплект | |
15 | Решетка для лазанья | выполнена из сварного каркаса из профиля прямоугольного 40х25, профиля 40х40 и трубы диаметром 32 мм. Сварная конструкция является каркасом для сетки. Сетка из шестипрядного армированного полиамидного каната тросовой свивки диаметром 16 мм. На брус обвязки стоек крепится при помощи скоб через коуши. Канаты в местах пересечения фиксируются при помощи пластикового крестообразного соединителя для канатов диаметром 16 мм. Канаты помещаются в пазы соединителя, которые защёлкиваются между собой и фиксируются саморезом. Концы канатов заканчиваются коушем и фиксируются зажимной втулкой | шт | |
16 | Скалолаз наклонный | Скалолаз состоит из щита из влагостойкой фанеры толщиной 18 мм, размер 900х1450, с прорезями, окрашен в стиле мультяшный город. Крепится к опорным брусам тумбы при помощи накладок | комплект | |
17 | Скалолаз | Скалолаз состоит из щита из влагостойкой фанеры, толщиной 18 мм, размер 1000х800 мм, с прорезями. Окрашен с нанесением принта в стиле Эко | шт | |
18 | Игровая панель | выполнена из влагостойкой фанеры толщиной 18 мм. Габарит 840х800х18 мм. В щите выполнены прорези, по которым перемещаются ползунки. Ползунки выполнены как соединение двух кругов из влагостойкой фанеры толщиной 18 мм, диаметр кругов 100 мм. Круги соединены между собой болтом через трубу ПВх25 мм. Щит окрашен с нанесением рисунка в стиле Эко. На ползункахразличные представители фауны: бабочки, жуки, пчелка, ящерица - игра заключается в том что нужно совместить ползунок и рисунок на панели | комплект |
Артикул
ДИК 2.01.8.01-02
Артикул (старый)
ДИК 801.2
Серия
Принт
Вид оборудования
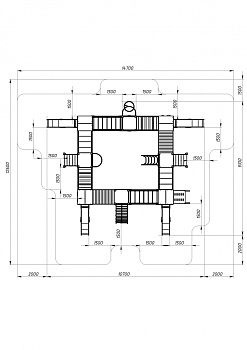
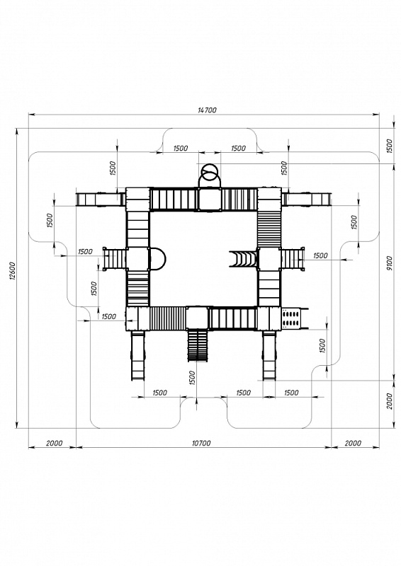
Габариты (ШхДхВ)
9100x10700x3000
Зона безопасности, мм
12600х14700
Высота падения, мм
2400
Вес, кг
1603,60
Скат горки
H=1200 (металлический скат)
Возрастные ограничения
от 5 до 12 лет, весом не более 70 кг
Фильтр по возрасту
Официальная гарантия
Гарантийный срок на изделия от 12 месяцев
Сертификат
RU №0208095 №: RU C-RU.AE83.B.00092/20 Сертификат соответствия (Детские игровые комплексы)
| ✅ | Входим в реестр российской промышленной продукции |
|
|
Важно: Обращаем Ваше внимание, что мы постоянно стремимся улучшать качество выпускаемой продукции, для чего периодически можем вносить изменения в конструкцию, дизайн и комплектацию товаров и упаковки на основании собственных инновационных разработок и отзывов пользователей без дополнительного уведомления. Данные изменения принципиально не влияют на первоначально заявленные функциональные свойства. Вследствие этого, технические характеристики, вес и размеры могут незначительно отличаться. |
|
|
Соответствие стандартам: Оборудование изготовлено по чертежам и техническим условиям изготовителя и соответствует требованиям ТР ЕАЭС 042/2017. - Детское игровое оборудование спроектировано и изготовлено согласно межгосударственному стандарту, а именно ГОСТ34614.1-2019, ГОСТ34614.2-2019, ГОСТ34614.3-2019, ГОСТ34614.5-2019, ГОСТ34614.6-2019. - Уличные тренажеры спроектированы и изготовлены по ГОСТ Р 55678-2013, ГОСТ Р 57538-2017. - Спортивное оборудование, спортивные комплексы, воркаут и многофункциональные комплексы спроектированы и изготовлены по ГОСТ Р 55677-2013. |
|
|
Паспорт на изделие: на русском языке, согласно ГОСТ34614.1-2019, раздел 6. |
|
|
Гарантийный срок на изделия: 12 месяцев |
Рекомендуемые товары
* Если вы являетесь нашим клиентом и имеете учетную запись, то чтобы увидеть цены, вам нужно залогиниться на сайте.
* Если вы являетесь нашим клиентом, но не имеете учетную запись, то вам необходимо:
Сразу же после обработки данных персональный менеджер свяжется с вами, чтобы одобрить статус покупателя, и вам станут доступны цены и предложения компании.
* Если вы пока не являетесь нашим клиентом, то вам необходимо зарегистрироваться, запросить прайс-лист и совершить свою первую покупку напрямую через отдел продаж
производство современного оборудования
для парков, игровых и спортивных площадок
|
ООО «ПРОГРЕСС БЛАГОУСТРОЙСТВА». Официальный производитель товарного знака СКИФ ПРО ®. Информация на данном интернет-сайте носит исключительно информационный (ознакомительный) характер и ни при каких условиях не является публичной офертой, определяемой положениями Статьи 437 Гражданского кодекса РФ. Для получения исчерпывающей информации о стоимости и характеристиках товаров обращайтесь по телефонам на сайте. Автоматизированный сбор информации с сайта и любое использование контента, а так же без письменного разрешения администрации сайта запрещено. © 2025. Все права защищены. |