7:30 - 16:00 (мск)
Сб-Вс: Выходные
г. Самара, Московское шоссе 18км Территория Завода Приборных Подшипников
Контактная информация
7:30 - 16:00 (мск)
Сб-Вс: Выходные
г. Самара, Московское шоссе 18км Территория Завода Приборных Подшипников
Описание
Характеристики
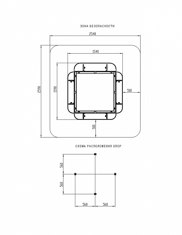
Песочница ИО 5.01.15-01
Артикул
ИО 5.01.15-01
Артикул (старый)
ИО 515.1
Принт
Вид оборудования
Габариты (ШхДхВ)
1590x1540x420
Зона безопасности, мм
2590х2540
Вес, кг
41,20
Возрастные ограничения
до 14 лет, весом не более 70 кг
Фильтр по возрасту
Для детского сада
Официальная гарантия
Гарантийный срок на изделия от 12 месяцев
Сертификат
ЕАЭС № RU Д-RU.AE83.B.02674/20 Декларация соответствия (Песочницы и песочные дворики)
| ✅ | Входим в реестр российской промышленной продукции |
|
|
Важно: Обращаем Ваше внимание, что мы постоянно стремимся улучшать качество выпускаемой продукции, для чего периодически можем вносить изменения в конструкцию, дизайн и комплектацию товаров и упаковки на основании собственных инновационных разработок и отзывов пользователей без дополнительного уведомления. Данные изменения принципиально не влияют на первоначально заявленные функциональные свойства. Вследствие этого, технические характеристики, вес и размеры могут незначительно отличаться. |
|
|
Соответствие стандартам: Оборудование изготовлено по чертежам и техническим условиям изготовителя и соответствует требованиям ТР ЕАЭС 042/2017. - Детское игровое оборудование спроектировано и изготовлено согласно межгосударственному стандарту, а именно ГОСТ34614.1-2019, ГОСТ34614.2-2019, ГОСТ34614.3-2019, ГОСТ34614.5-2019, ГОСТ34614.6-2019. - Уличные тренажеры спроектированы и изготовлены по ГОСТ Р 55678-2013, ГОСТ Р 57538-2017. - Спортивное оборудование, спортивные комплексы, воркаут и многофункциональные комплексы спроектированы и изготовлены по ГОСТ Р 55677-2013. |
|
|
Паспорт на изделие: на русском языке, согласно ГОСТ34614.1-2019, раздел 6. |
|
|
Гарантийный срок на изделия: 12 месяцев |
Рекомендуемые товары
производство современного оборудования
для парков, игровых и спортивных площадок
|
ООО «ПРОГРЕСС БЛАГОУСТРОЙСТВА». Официальный производитель товарного знака СКИФ ПРО ®. Информация на данном интернет-сайте носит исключительно информационный (ознакомительный) характер и ни при каких условиях не является публичной офертой, определяемой положениями Статьи 437 Гражданского кодекса РФ. Для получения исчерпывающей информации о стоимости и характеристиках товаров обращайтесь по телефонам на сайте. Автоматизированный сбор информации с сайта и любое использование контента, а так же без письменного разрешения администрации сайта запрещено. © 2025. Все права защищены. |